当ブログ「kikorist日誌」は、kikorist夫婦が住友林業で注文住宅を建てる過程や、家づくりのこだわりポイントを発信・紹介するブログです。
あわせて住友林業の割引が受けられる紹介制度のご案内もしています。
住友林業を検討中の方はもちろん、これから家づくりを始める全ての方に分かりやすく情報を発信しています。
WEBマガジン「イエマガ」でライターとして家づくりの検討過程を月刊連載中。
家づくりに関するリアルタイムの情報、ブログに書ききれない住友林業の小ネタはTwitterで、インテリアなどの写真はInstagramで発信していますので、よろしければフォローお願いします。
【注意事項】当ブログ内の写真、イラスト、文章については、流用・引用を一切認めておりません。
当ブログはアフィリエイト広告/AdSecse広告を利用しています。
Twitterでも報告させていただきましたが、住友林業契約後の3回目の打ち合わせで、1/100の1/50の間取りに突入しました!
本日のすみりんとの打ち合わせから1/50図面となったことを謹んで報告させていただきます。#住友林業
— kikorist@住友林業の3階建て (@kikorist2020) January 16, 2021
今回は1月16日の打ち合わせ内容の報告です。前回が1月11日ですからわずか5日、住友林業は火・水が休みですので、先方にとっては中2日での打合せです。

設計氏も短時間で用意いただき申し訳ない…。
前回の修正内容の確認
前回の修正内容を1/50図面での確認にし、ほぼほぼ問題ないことを確認しました。
前回の打ち合わせ内容はこちら。
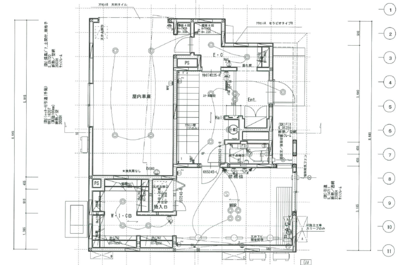
前回記載を忘れていましたが、ビルトインガレージの出入口となる扉を建物側にずらし、開き戸に変更しています。前回の位置だと開き戸にすると車に当たる可能性があるため、引き戸となっていました。
引き戸は開き戸と比べて高額なため、建具の位置を建物側にずらすことで開き戸に変更しています(これで約4万円の減額)。それに伴い、収納の一部が屋外収納になっています。車用の工具などはここに収納する予定です。

また、トイレと玄関部分の間のスペースがデッドスペースになっていたので、玄関部分をシューズラック兼土間収納という形で広げて、スペースを有効活用することにしました。
間取りの修正は以上です。

間取り自体はほぼ完成形になりました!
基本設計を詰める
住友林業では、工事請負系契約締結後、「基本設計」「外装」「内装」「水廻り」「電気設備」「インテリア」の流れで家づくりをしていきます。家づくりの流れは、契約後に住友林業から渡される「家づくりガイド」に書いてあるので、初めての方でも安心です。

ほとんどの人は初めてだと思うけど…。
契約後に最初に決めなければいけないのが「基本設計」です。基本設計には以下のような内容が含まれます。
- 間取り=壁の位置・面積
- 建物の高さ(各階の高さ)
- 屋根の形(軒の出寸法含む)
- 開口部の位置・大きさ(内部建具・窓サッシ)
- 住宅設備の位置(エアコン(室外機含む)・エネファーム)

基本設計の内容
屋根・窓サッシの色、建具などは外装・内装で決めていきますが、どういった種類の窓・建具を使うのか、サイズは基本設計の段階で決める必要があります。
仕様書カタログ
契約一歩手前まで行った積水ハウスでは、インテリアカタログ/エクステリアカタログ/などという形でジャンル別に1冊のカタログになっていましたが、住友林業にはそういったものはなく、アイテム・メーカー別に個別のカタログになっています。

これは積水ハウスに比べるとちょっと使いにくいので、1冊のカタログにまとめてくれないかな、と思います。

メーカーごとにちょっとした仕様変更・モデルチェンジごとにカタログ1冊作り替えたりするのはコストがかかるし、訂正紙の枚数がやたらに増えるのも困りものなので一長一短ですが…。
私たちは契約時にこれから仕様検討するから設備仕様のカタログが欲しいと要望していたので、営業担当氏がファイリングしてまとめてくれていました!

営業担当氏お手製のカタログファイル

さすができる!
中身はこんな感じです。

ただですね、このカタログ、肝心の価格が載ってないのです…。
標準仕様(=推奨仕様)はいいとして、オプション(=提案仕様)は差額なりオプション代なり書いておくべきじゃないかと…。

価格が分からないと結局検討できない…。
Excelでもいいから価格表の一覧いただけませんか?

価格はシステムで個別に出すので、一覧表はないんです…。
個別に興味のあるものは聞いていただければお答えできます…汗

営業担当氏も手間が増えるだけなので、カタログに価格は全て載せておいて欲しい…。切実に。
※積水のカタログにも価格は入っていませんでした。

競合ハウスメーカーに価格がバレる、などの意味があるのかもしれませんが、ユーザーからすると不便の一言です。
結局いくらか分からなければ決められないので問い合わせるハメに…。
とはいえ、ないよりはあったほうがいいので、毎回この鈍器のようなファイルは打ち合わせに持参しています。
そのほかにも写真に写っている、個別にメーカーが出しているカタログも持参したりするので、荷物はパンンパンです。
建具(ドア)の決定
「建具」というのは、簡単に言うとドアのことです。収納の扉も建具に含まれます。

注文住宅を作るまでは知らない用語でした…汗

確かに「そこの建具(=ドア)閉めて」とは言わないわね。
ドア自体は、前回の間取り打ち合わせ時にほぼほぼ決定してました。
私たちが意識したことは、「不要な建具は付けない」ということと、「ハイウォール建具で揃える」、ということの2点。
何気なく付いている建具1つが5万円~10万円します。
また、同じドアでも開き戸>引き戸>引き込み戸の順番に高くなります。私たちはシューズインクローゼットの扉、ウォークインクローゼットの扉、書斎の扉などを削減しました。

推定15万円ほどの削減にはなったはず。
もう1つのこだわりポイントは、ハイウォール建具=天井まである建具で揃えるということ。他社はオプションとなりますが、住友林業は標準でハイウォール建具を採用しています(もちろんハイウォールでない建具も選択可能ですし、建具の種類や天井高によっては天井までとならない場合があります)。

天井高を240もしくは225にした場合に建具の高さ=天井の高さとなります。
ハイウォール建具にすることで、壁の垂れ壁(建具と天井の隙間部分)がなくなってスッキリした印象になる
んですよね。

これは初回訪問したモデルハウス出会った住友林業の現在の営業担当氏に力説された内容。
建具に限らず、極力ラインや高さを揃える、少なくするというのは家づくり全般において意識しています。
採用したドアは住友林業標準のハイウォール建具です。カラーはこれから選択ですが、リビングの扉のみガラススリット入りにし、あとは特に装飾のないプレーンのものを選びました。
窓の選択
住友林業の標準仕様
住友林業の標準仕様では、LIXILのサーモスII(サーモスL)が標準となります(東京の場合。寒冷地が違うかも…)。

提案仕様(オプション)として、より断熱性の高いサーモスXも選択できます。

樹脂サッシについても選択は可能ですが、樹脂サッシは窓枠が太くなるなどの理由で美観が損なわれるため、あまり推奨していないとのことでした。

とはいえ、寒冷な地域で窓の断熱性にこだわりたい場合は積極的に樹脂サッシを採用してもいいと思うわ。
提案工事となりますが…。きこりん税かかりますが…。

私たちは見た目のバランスも取って、大きな窓のみサーモスXへのアップグレードをしています。
基本は標準のサーモスLにし、断熱上重要だと思われる2階リビングの大きな窓と3階リビングの大きな窓はサーモスXにアップグレードしました。

サーモスXはさらにトリプルガラスのオプションがあり、性能的にはこれが一番ですが、防火仕様はありません。
準防火地域の窓規制
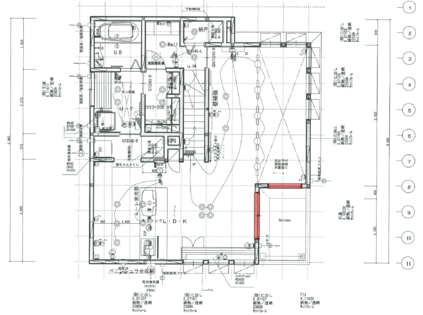
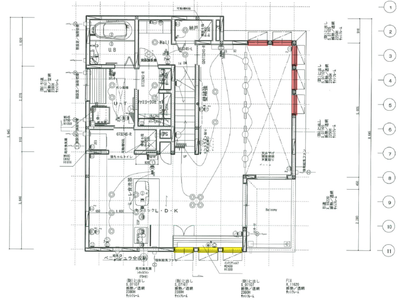
今回は全フロアの窓1枚1枚の確認を行いました。私たちの家は準防火地域にあるのですが、準防火地域の場合、窓の仕様に次の制限が加わります。
- 網入り耐火ガラス
- 網無しガラス+防火シャッター
- 耐火強化ガラス
上記は隣地からの距離で規制を受けるため、準防火地域であっても広々とした敷地に隣家や道路から距離をとって建てれば網無しガラスで防火シャッターも不要です。

出典:LIXIL
私たちの場合は、敷地を最大限に有効活用するため、民法規制(隣家から50cm)ギリギリで建てていますので、上記の制約を受けることになります。
基本的にはうちは隣家の視線の関係で高窓が多いので、網入りガラスとしましたが、2階リビングの大窓はポイントとなる大きな窓なので、網無しのクリアガラスにしたい。

ところが、大窓は床から天井までの高さで設計している関係で、防火シャッターを付けることができないため、特注で耐火強化ガラスにできないかLIXILに確認いただくことになりました。

防火対応のトリプルガラスが選べないなど、窓の仕様にかなり制限がかかります。

窓の規制と制限は都内の住宅の宿命ですね…。
窓枠
住友林業では窓のサッシの色は、外側・内側それぞれ決めることができます。色についてはインテリアコーディネーター氏と今後相談の上決定していくので、とりあえずは窓枠を決めます。
窓枠については、四方枠か三方クロス巻きにするかが選べます。
四方枠はその名の通り窓の上下左右に窓枠が付きます。

これはこれでシャープで好きという方もいるかもしれません。
三方クロス巻きは、下側を除いた三方向をクロスで巻き込む仕上げです(下側だけは結露対策や汚れ防止のため窓枠が付きます)。

クロス巻きは窓枠がない分すっきりしますね。
私たちはすっきりが好みなので、全ての窓をクロス巻きでお願いしました。
クリアガラスにするかフロストガラスにするか
窓ガラスはクリアガラスかフロストガラス(=曇り)にするか選択します。
隣家や道路からの視線を遮りつつ、採光したい場合はフロストガラスになります。我が家は全てクリアガラスです。
1か所だけ悩んだのは寝室の北側の窓です。

個々の部分は外側から見えてしまう部分ですが、玄関南側はイロハモミジを植える予定です。植栽で目隠しがされるのと、イロハモミジで季節をガラス越しに感じられることを優先し、あえてクリアガラスにしました。

冬や気になる場合はロールスクリーンを付ければいいかなと。
窓の大きさ
窓の大きさは、基本的には既製のサイズから選んでいくことになります。既製サイズとして何があるのかは施主は把握できないので、基本は設計士にお任せです。
その上で、気になる点を修正していきました。
意識したのは、窓の大きさ・高さ・間隔は全て揃える、という点です。
具体的には、2階リビングの窓の高さと大きさを揃えました。

南側の窓は北側とサイズと高さが少し違っていました(南側のほうが2cmだけ縦に大きい)。そこで、南側の窓のサイズと高さを北側のサイズにあわせました(小さいほうのサイズにあわせたのは、わずか2cmの違いだったのと、わずか2cmといえど小さいサイズにあわせたほうが安くなることを期待して)。
室内に9個ある窓が同じ形・同じ間隔で並ぶのできっとリズムよく並び、いい感じになりそうです^^
あとは、脱衣所にある窓は造作棚にあわせて高さを少し変更しています。脱衣所の造作は今後紹介予定です。
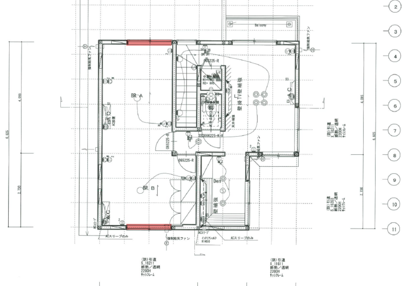
3階は、前回子供部屋の西側の窓2枚、書斎の窓を削減しています。窓も1枚数万円しますので、削除効果は大きいです。なくても困らない窓、ない方がいい窓は積極的に減らしましょう。
その上で、北側と南側の腰窓の高さが異なっていたので、短いほうにあわせています。腰窓ですし、子供部屋なのである程度壁があったほうがいいという判断です(ついでに少しですが減額も期待できます)。
建具・窓の打ち合わせのまとめ
間取りと比べるとやや地味な打ち合わせとなりますが、外観や内観に影響を与える重要な内容です。
綺麗な窓にする方法はファンタジスタフジモンさんがまとめられいますので、一読をオススメします。
もちろん、窓は断熱を考える上でもポイントととなる箇所です。ただし、全てにお金をかけると、費用がとんでもないことになりますので、費用対効果が高い、サイズの大きな窓、よくいる空間の窓を中心にグレードアップするといいのではないでしょうか。

既に完成してwer内覧会している方のブログは特に参考になるはず。





















コメント